Espace propriétaire
fr
Se connecter
Se connecter

Votre recherche

Descriptif de ce bien

REF:2010.VENTE REALISEE EN COLLABORATION AVEC LE CABINET CHEVILLON DE SAUMUR.

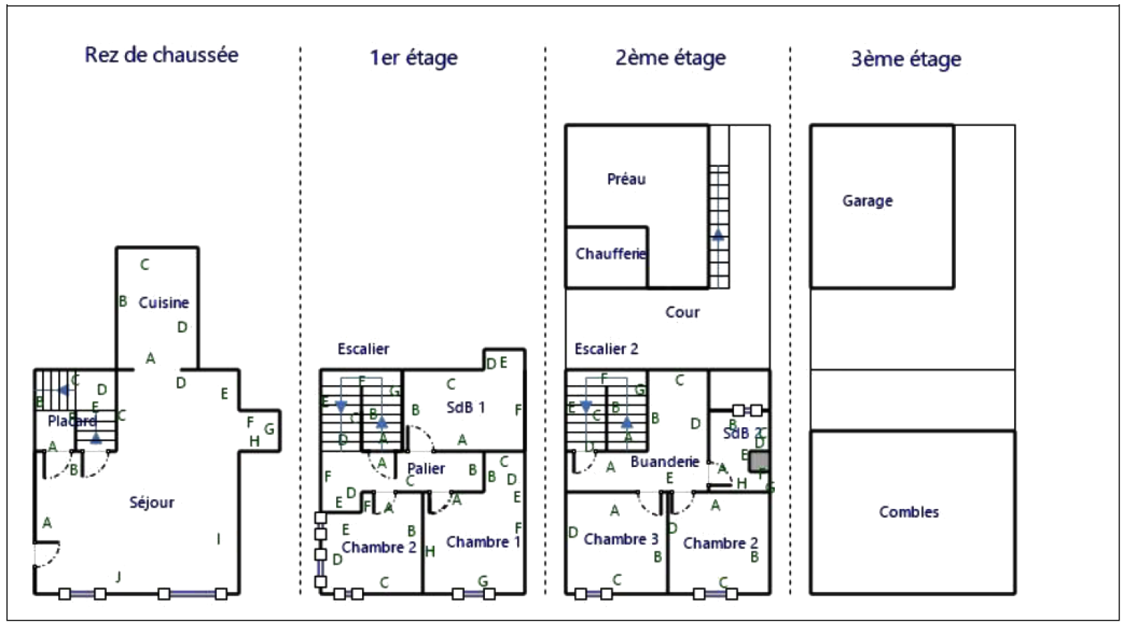
MAISON DE CARACTERE OFFRANT AU RDC:

ENTREE PIECE DE VIE DEPART ESCALIER CUISINE OUVERTE

PREMIER ETAGE:PALIER.2 CH.SDB WC

AU DEUXIEME ETAGE: APPARTEMENT INDEPENDANT

COMPRENANT:CUISINE.2 CH.SDB WC

TERRASSE COURETTE.GARAGE .CHAUFFERIE

CHAUFFAGE CENTRAL FUEL.TOUT A L'EGOUT

TAXE FONCIERE:686 €

AGENCE BOURBON TEL:02.41.40.25.10

Général
Code postal 49730
surface terrain 50 m²
Nombre de chambre(s) 4
Nombre de pièces 5
Nombre de niveaux 3
Détails
Nb de salle de bains 2
Cuisine Américaine
Type de cuisine SEMI-EQUIPEE
Mode de chauffage Fioul
Type de chauffage TRAD_TYPE_CHAUFF_CHAUDIERE
Format de chauffage Central
Terrasse OUI
Murs mitoyens 2
Nombre de garage 1
Nombre de parking 1
Année de construction 1880
Quartier montsoreau
Terrain piscinable NON
Terrain arboré NON
Terrain divisible NON
Financier
Taxe foncière annuelle 686 €
Quartier
  • Commerces et santé
  • Loisirs
  • Ecoles
  • Transports
  • Pratique
Energie
DPE GES
Copropriété
Copropriété NON
Contacter pour ce bien
L'agence
Téléphone 02 41 40 25 10
Adresse
6 Rue du Logis Bourbon 49590 Fontevraud l'Abbaye

* Champ obligatoire

Les informations recueillies sur ce formulaire sont enregistrées dans un fichier informatisé par La Boite Immo agissant comme Sous-traitant du traitement pour la gestion de la clientèle/prospects de l'Agence / du Réseau qui reste Responsable du Traitement de vos Données personnelles. La base légale du traitement repose sur l'intérêt légitime de l'Agence / du Réseau. Elles sont conservées jusqu'à demande de suppression et sont destinées à l'Agence / au Réseau. Conformément à la loi « informatique et libertés », vous disposez des droits d’accès, de rectification, d’effacement, d’opposition, de limitation et de portabilité de vos données. Vous pouvez retirer votre consentement à tout moment en contactant directement l’Agence / Le Réseau. Consultez le site https://cnil.fr/fr pour plus d’informations sur vos droits. Si vous estimez, après avoir contacté l'Agence / le Réseau, que vos droits « Informatique et Libertés » ne sont pas respectés, vous pouvez adresser une réclamation à la CNIL. Nous vous informons de l’existence de la liste d'opposition au démarchage téléphonique « Bloctel », sur laquelle vous pouvez vous inscrire ici : https://www.bloctel.gouv.fr Dans le cadre de la protection des Données personnelles, nous vous invitons à ne pas inscrire de Données sensibles dans le champ de saisie libre.
Ce site est protégé par reCAPTCHA, les Politiques de Confidentialité et les Conditions d'Utilisation de Google s'appliquent.

Découvrir nos outils